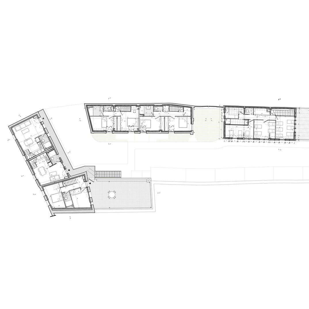
Réhabilitation d’un ensemble bâti en logements et commerces
- Maître d’ouvrage : Privé
- Lieu : Pont-Saint-Pierre, 27360 Eure
- Date Livraison : Juin 2026
- Etape du projet : Phase PC
- Surface : 500 m²
- Coût : NC









Découvrez également
APPARTEMENT LB
- Maîtrise d'ouvrage : Privé
- Date : 2025
- Surface : 86 m²
- Coût : NC